91抖阴污在线观看,91抖阴视频在线直播,91抖阴视频下载,91成人版抖阴APP下载

    陸家嘴中國保險大廈寫字樓出租信息

    作者:Bliss Office時間:2020-03-23


    陸家嘴中保大廈

    縱覽外灘百年繁盛,坐擁浦東現代文明。中國保險大廈座落於上海浦東陸家嘴金融貿易心——世紀大道與陸家嘴東路交匯的黃金角地。置身於延安路隧道、複興路隧道、大連路隧道和地鐵二號線等完善的交通網絡之中。

    中保大廈

    中國保險大廈麵向申城浦江,遙對東方明珠。正立麵有開闊的視野帶,可縱觀浦江兩岸風生水起、萬千氣象,亦可飽覽樓前十多公頃中央花園的自然風光,令人心曠神怡。 中國保險大廈高聳196米,總建築麵積73000平方米,為三十九層白花崗岩玻璃帷幕的雙塔型大樓,遠眺宏偉莊重,近觀幽靜典雅。寬敞實用的標準辦公樓層采用無柱式空間設計,能充分利用空間的自由靈活規劃,辦公環境彰顯優越。雙扇型裙房裏,餐飲、休閑、銀行營業廳等各類商務設施一應俱全。地下建築層中擁有240個車位的現代泊車中心,讓您體驗現代化辦公大樓的卓越便利。



    中國保險大廈樓宇參數:

    辦公空間:

    1300平方米到1700平方米的標準樓層建築麵積,完全無柱設計

    63%-70%的實用率

    2.7米的標準樓層室內淨高

    辦公樓層荷載為2.5KN/m2

    電梯係統:

    5部高區客梯,服務停靠大堂、22層至38層

    6部低區客梯,服務停靠大堂、5層至21層

    1部消防及貨運電梯,停靠地下3層至地上39層

    4部服務梯和14台自動扶梯,服務於大廈裙房各樓層及地下三層停車場

    空調係統 (冷氣/暖氣/通風):

    采用四管製恒溫中央變風量空調係統,夏季保持在23℃±1℃,冬季保持在21℃±1℃

    3台美國TRANE離心式冷凍機組,分別為2台1000RT和1台500RT

    電力係統:

    兩路獨立的10千伏市電接入

    1000千瓦柴油發電機作應急供電,保證基本設施和救生設備緊急狀態的備用電源

    通訊係統:

    先進的通訊設備,高效接入ISDN,ADSL,DDN和寬帶係統

    垂直布線為多模光纖

    各樓層水平布線為五類雙絞線,提供200門直線電話

    無線通信係統覆蓋整個大樓,包括電梯和地下室

    衛星電視係統可接收國內和海外的電視節目

    停車場:

    地下三層設有240個停車泊位

    地麵設有20個公共停車泊位

    智能化停車場管理係統提供車輛進出的自動化控製

    保安及大廈管理係統:

    閉路電視監視係統覆蓋大樓重要應急出入口,實行24小時全方位監控

    保安人員對大樓進行24小時巡查

    采用最先進的美國江森智能化自控係統


    中國保險大廈目前業主方對外租金價格是:8-10元/平/天,物業費:30元/平/,整棟樓是開發商自持物業,而且非常有格調的一個大樓,大樓裏麵有聯合辦公,業主方沒有招商這種業態,說不好管理。

    點讚支持!目前整棟樓在租麵積:153平,230平,253平,268平,395平,412平,485平,834平等等,部分房源帶裝修隔斷。谘詢電話:18616199007



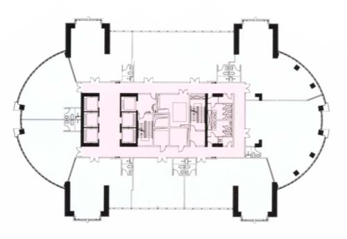
    中國保險大廈 平麵圖

    中國保險大廈 戶型圖






    網站地圖