八佰伴
浦 東-商城路889號
2號線-東昌路、9號線-商城路
In Tenant Type
Building photos
Building introduction
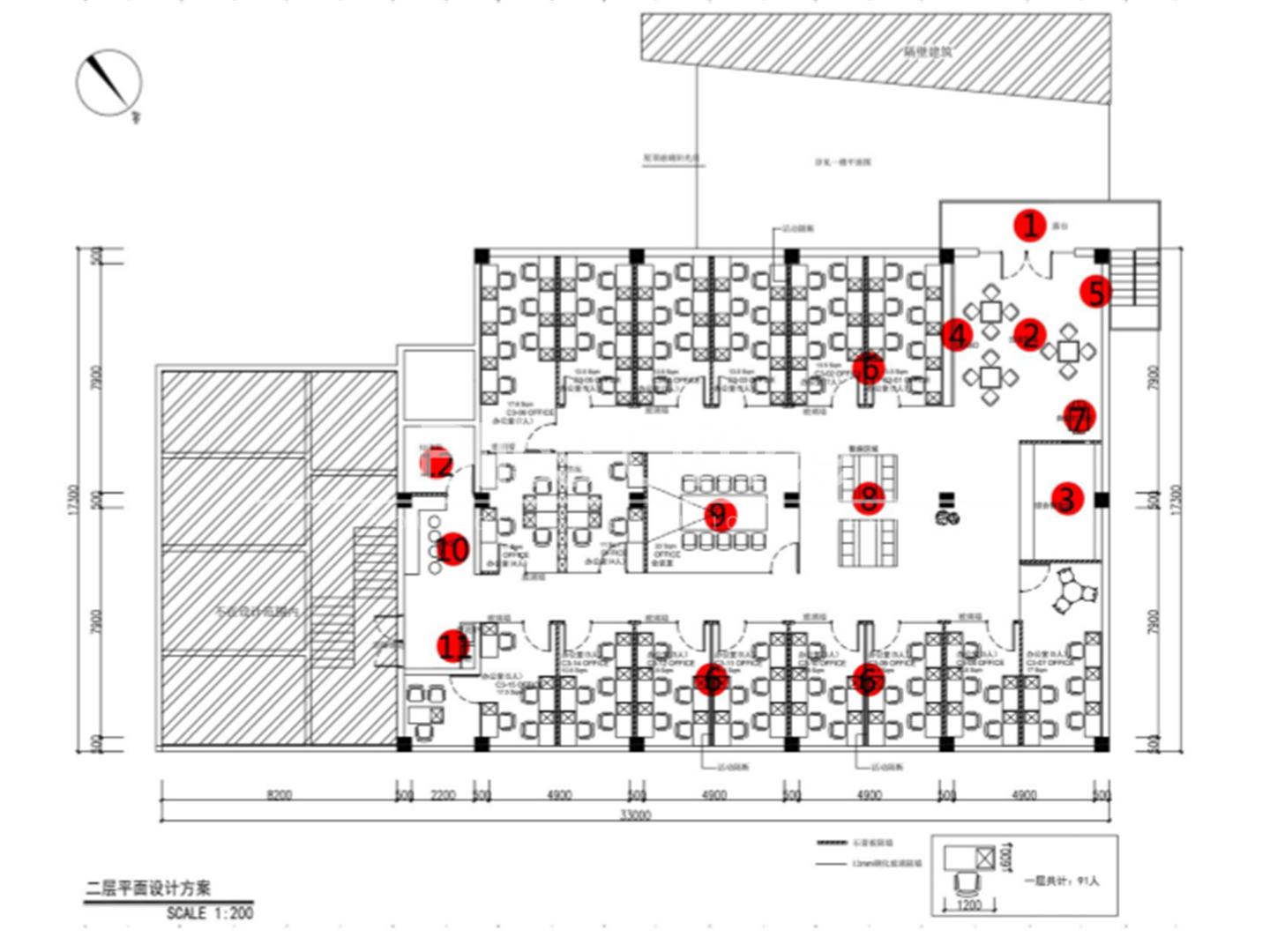
行政前台
辦公家具
會議室
洽談室
茶水
免物業費
中央空調
辦公寬帶
WIFI
衛生間配套
辦公清潔
打印複印
傳真
冰箱
微波爐
24小時辦公
咖啡
多功能廳
休閑娛樂區
健身空間
收發快遞
露台陽台
商務聚會
創業輔導
工商注冊
公司年檢
法律谘詢
稅務
財務代理
人力招聘
投融資資源
運營服務
複客中國是國內頂尖的眾創空間運營商,旗下已有六家省級眾創空間。
複客中國是以社群為基礎的聯合辦公空間,通過提供靈活的辦公場地,為創業者、大學生、飛速發展的新興行業提供全方位線上線下的共享辦公服務。
同時,複客中國還為入駐企業提供運營管理、基金投資、市場對接等創業孵化功能。
在眾創空間主題方麵,複客中國以人工智能為特色,突出移動物聯網、IP內容智造、泛文娛等相關領域;另一方麵,複客中國依托平台效應,突出造商功能,通過與創業者聯合成立公司模式,形成2.0版孵化體係,引領眾創產業創新發展。
目前,複客中國以上海為中心,沿滬發展,突出北京、深圳地區,現已入駐和布局上海、北京、深圳、昆山、常州、台州、杭州等地。
複客中國具有獨特的孵化和股權投資能力;一方麵,複客中國擁有以人工智能為主題的孵化基金;另一方麵,複客中國依托平台效應,突出造商功能,通過與創業者聯合成立公司模式,形成2.0版孵化體係。
複客中國在上海已經開業的中心有:
浦東:波特營創意園
靜安:凱迪克大廈
虹口:東方漁人碼頭
Public transit
浦 東八佰伴商城路889號
How To Commissin Bliss Office