91抖阴污在线观看,91抖阴视频在线直播,91抖阴视频下载,91成人版抖阴APP下载

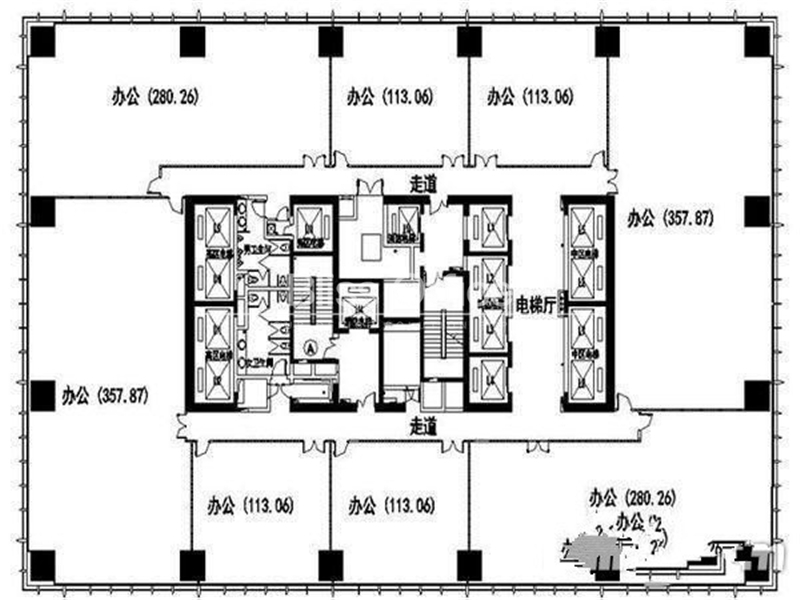
    匯亞大廈寫字樓整層2390方標準交房

    分享
    79.97 萬元/月
    • 單價:11.0元/㎡/天
    • 物業費:42.0元/㎡/月
    2390㎡
    建築麵積
    250-300人
    容納工位
    標準交房
    裝修
    • 浦 東-陸家嘴
    • 2號線-陸家嘴、14號線-陸家嘴
    • 匯亞大廈

    房源專屬顧問為您服務

    楊亦晗Cassie

    13167276699
    預約看房

    公共交通

    Public transit

    匯亞大廈

    浦 東陸家嘴陸家嘴環路1233號

    網站地圖