91抖阴污在线观看,91抖阴视频在线直播,91抖阴视频下载,91成人版抖阴APP下载

    浦江國際金融廣場出租440方精裝適合金融

    分享
    10.04 萬元/月
    • 單價:7.5元/㎡/天
    • 物業費:38.0元/㎡/月
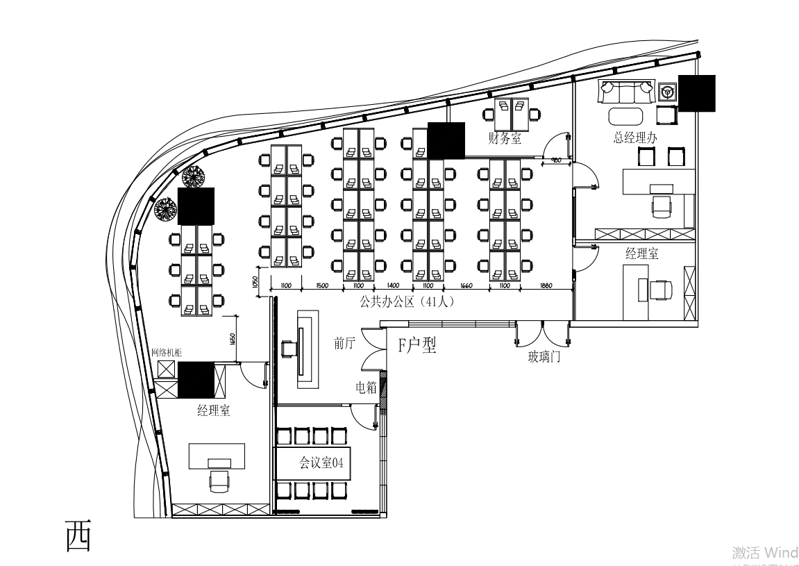
    440㎡
    建築麵積
    40-60人
    容納工位
    帶裝修家具
    裝修
    • 虹 口-北外灘
    • 12號線-提籃橋
    • 浦江國際金融廣場

    房源專屬顧問為您服務

    徐佳樂Jerry

    13052210023
    預約看房

    公共交通

    Public transit

    浦江國際金融廣場

    虹 口北外灘東大名路1098號

    網站地圖