91抖阴污在线观看,91抖阴视频在线直播,91抖阴视频下载,91成人版抖阴APP下载

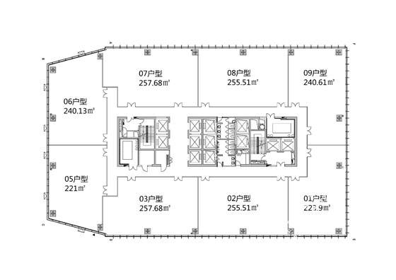
    國華人壽金融大廈出租255方精裝家具適合金融

    分享
    5.82 萬元/月
    • 單價:7.5元/㎡/天
    • 物業費:32.0元/㎡/月
    255㎡
    建築麵積
    20-30人
    容納工位
    帶裝修家具
    裝修
    • 浦 東-世紀大道
    • 2號線-世紀大道、4號線-世紀大道、6號線-世紀大道、9號線-世紀大道
    • 國華人壽金融大廈

    房源專屬顧問為您服務

    楊亦晗Cassie

    13167276699
    預約看房

    公共交通

    Public transit

    國華人壽金融大廈

    浦 東世紀大道向城路288號

    網站地圖