91抖阴污在线观看,91抖阴视频在线直播,91抖阴视频下载,91成人版抖阴APP下载

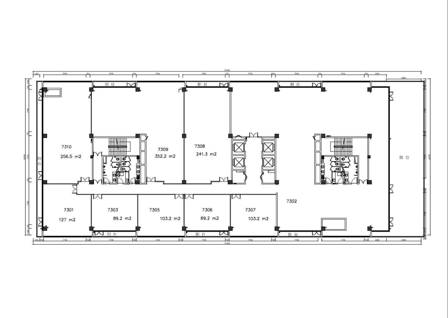
    大寧中心廣場,三期103平,簡裝交付,現房

    分享
    1.57 萬元/月
    • 單價:5.0元/㎡/天
    • 物業費:18.0元/㎡/月
    103㎡
    建築麵積
    10-15人
    容納工位
    有裝修無家具
    裝修
    • 閘 北-大寧
    • 1號線-上海馬戲城
    • 寧匯廣場•大寧中心廣場三期

    房源專屬顧問為您服務

    徐佳樂Jerry

    13052210023
    預約看房

    公共交通

    Public transit

    寧匯廣場•大寧中心廣場三期

    閘 北大寧靈石路718號

    網站地圖