400-8090-6609.65 萬元/月
- 單價:10.5元/㎡/天
- 物業費:36.5元/㎡/月
302㎡
建築麵積
30-50人
容納工位
帶裝修家具
裝修
浦 東-陸家嘴
2號線-陸家嘴、14號線-陸家嘴
東亞銀行金融大廈
基本信息
- 使用率約 70%
- 可否注冊 是
- 免租時間 2個月
- 最早可租 隨時
- 最短租期 3年
- 裝修備注 精裝修配家具
- 看房時間 隨時
東亞銀行金融大廈
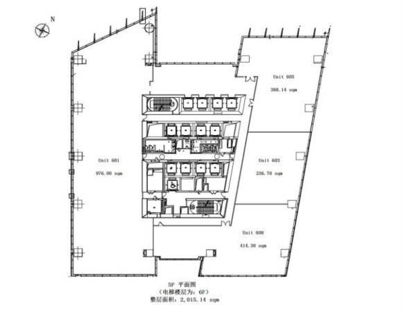
- 總樓層 地上42層,地下3層
- 單層麵積 2200平
- 竣工年月 2008年10月
- 物業公司 上海晟際物業
- 空調類型 集中式中央空調
網站地圖